A18664-J

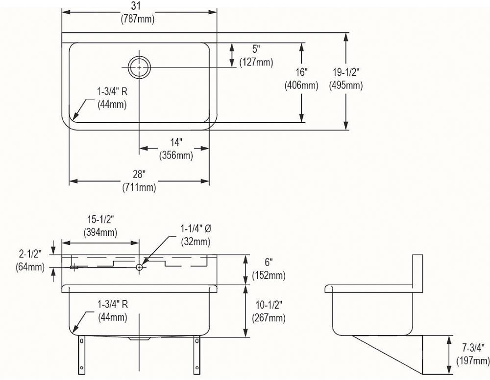
Stainless Steel 31" x 19-1/2" x 10-1/2" Wall Hung Single Bowl Hand Wash Sink

Faucet Holes
Material Stainless Steel
Installation Type Wall
Gauge 14
Number of Bowls 1
Minimum Cabinet Size 0"
Dimensions L: 31"
W: 19-1/2"
H: 24-3/8"
Bowl 1 Dimensions L: 28"
W: 16"
H: 10-1/2"
Hole Drillings 2
1
Shipping Dimensions L: 32-5/16"
W: 20-1/2"
H: 27"
Shipping Weight 34 LBS
Country Of Origin USA
ADA No
Code Compliance ASME A112.19.3
CSA B45.4
cUPC
IPC

Since 1933 Just Manufacturing has been the industry standard for designing and producing quality grade plumbing products and fixtures. Our role as an industry leader remains unsurpassed. From hospitals to schools to a variety of university complexes, Just Manufacturing stainless steel sinks and plumbing products enhance both form and function in significant construction projects around the world.

  • 14-gauge, Type 304 stainless steel
  • 1-3/4" coved corners
  • 1-1/2" rolled rims
  • Sound-deadening material minimizes sound and vibration for a quieter time at the sink
  • Exposed surfaces are blended by hand to a uniform lustrous satin finish
  • 3-1/2" drain opening
  • Furnished with wall hanger and stainless steel support brackets
  • 6" high, full-length backsplash